Villa singola in vendita

Trevignano Romano, Strada dei Covoni
€ 299.000
6 locali 6 locali
300 Mq 300 Mq
4 bagni 4 bagni

Villa singola in vendita

Trevignano Romano, Strada dei Covoni

Descrizione annuncio

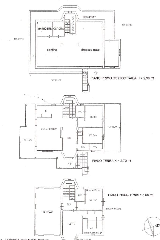
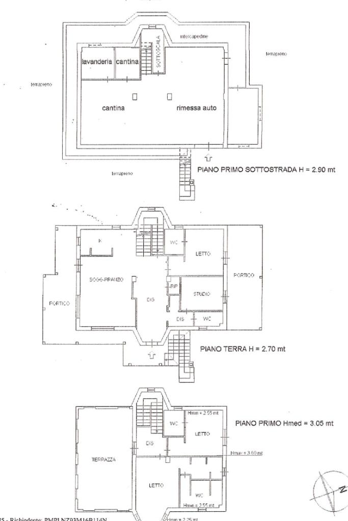
Trevignano Romano - zona Calandrina, proponiamo in vendita villa singola di 318 mq commerciali di cui 289 calpestabili.

Questa proprietà si sviluppa su più livelli, offrendo ampi spazi per ogni esigenza abitativa. La villa comprende sei locali ben distribuiti, ideali per chi cerca comfort e funzionalità.

Al piano terra, è presente un ampio salone con cucina open space e camino, un' ampia camera matrimoniale con bagno padronale con confortevole doccia e un terrazzo. Completa il piano un bagno con vasca e un ripostiglio con dispensa.

La zona notte, al piano primo, si sviluppa con camera matrimoniale con bagno padronale molto spazioso e con la possibilità di un altro terrazzo. Completa il piano un'altra camera con annesso bagno. Il terreno di pertinenza è di 5000 mt

Il piano seminterrato comprende una grande taverna e due stanze. Possibilità di usufruirne anche come ingresso garage per le macchine.

Gli interni sono progettati per garantire luminosità e praticità, con spazi che si adattano facilmente a diverse soluzioni di arredo. La struttura, di categoria civile, è stata realizzata con attenzione ai dettagli e materiali di qualità.

L'ampia metratura consente di godere di ambienti spaziosi, perfetti per famiglie numerose o per chi desidera avere a disposizione stanze aggiuntive per ospiti o per attività personali.

La posizione nel tranquillo contesto della Calandrina offre un equilibrio tra privacy immersione nella natura.

Mostra tutto

Nelle vicinanze

Trasporto pubblico Trasporto pubblico
Trevignano Romano
1,9 Km
Ricariche auto elettriche Ricariche auto elettriche
Trevignano Platani | EnelX
1,0 Km
Trevignano Via Roma | EnelX
1,5 Km
Trevignano al Molo | EnelX
1,9 Km
Scuole Scuole
Istituto Comprensivo Statale “Tommaso Silvestri”
1,8 Km
Farmacia Farmacia
Farmapoint
1,3 Km
Farmacia Amirkhanian
1,7 Km
Supermercati Supermercati
Carrefour
1,3 Km
Tuodì
1,3 Km
Carrefour Express
1,8 Km
Negozi Negozi
Stefanelli
1,8 Km
Alimentari
2,1 Km
Bar Bar
Bar
720 m
Ristoranti Ristoranti
Ristorante Per Passione
880 m
Pizzeria Il Prato
890 m
La casina bianca
1,0 Km
Il viale
1,1 Km
Casa Coppola
1,3 Km
Mostra tutto

Caratteristiche

Rif.:
61013920
Piano:
Su più livelli di 3
Totale piani:
3
Posti auto:
4
Terrazzi:
2
Camere da letto:
4
Mostra tutto
Prezzo Prezzo
€ 299.000
Rata mutuo Rata mutuo
€ 1.409 / mese
Spese annue Spese annue
€ 0
Proponi il tuo prezzoProponi il tuo prezzo

Classe Energetica

F
F
F
F
F
F
F
F
F
EP globale non rinnovabile:
175.00 kW h/m² anno
EP globale rinnovabile:
175.00 kW h/m² anno
EP invernale del fabbricato:
EP estiva del fabbricato:
Anno di costruzione:
2005
Riscaldamento:
Autonomo
Tipo impianto:
A radiatori
Tipo alimentazione:
GPL

Ti interessa visionare l'immobile?

Fissa un appuntamento  Fissa un appuntamento

Richiedi informazioni

Clicca su Leggi per aprire l'informativa
* Questi campi sono obbligatori

Calcola il tuo mutuo

Semplice e senza impegno
Anticipo

( % )
Mutuo

( % )

pochi semplici passi

inserisci i tuoi dati
Questionario completato
Grazie per aver richiesto un appuntamento senza impegno con un nostro Consulente del Credito e Assicurativo.

Hai inserito correttamente tutti i dati necessari e a breve riceverai una e-mail con un link da convalidare per inviare i tuoi dati.
Affiliato
Trevignano Srl
Via Della Rena, 16 00069 Trevignano Romano (RM)

Il nostro staff


  • Alessio Bosi
    Collaboratore

  • Claudia Castellani
    Collaboratrice

  • Veronica Gentile
    Coordinatrice

  • Daniele Labbate
    Collaboratore

  • Alessandro Perri
    Affiliato
Via Della Rena, 16 00069 Trevignano Romano (RM)
Zona: Trevignano Romano
Mostra su mappa
Affiliato
Trevignano Srl
Via Della Rena, 16 00069 Trevignano Romano (RM)

2026 Tecnocasa Franchising S.p.A. - P. IVA 08365160152 - Via Monte Bianco 60/A 20089 Rozzano (MI). Ogni agenzia ha un proprio titolare ed è autonoma. Privacy policy | Policy utilizzo | Cookie policy