Villa singola in vendita

Trevignano Romano, Via dalla Chiesa Carlo Alberto
€ 480.000
6 locali 6 locali
254 Mq 254 Mq
3 bagni 3 bagni

Villa singola in vendita

Trevignano Romano, Via dalla Chiesa Carlo Alberto

Descrizione annuncio

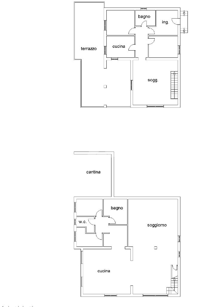
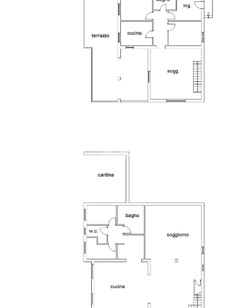
Trevignano Romano, proponiamo in vendita una villa singola che si estende su una superficie di 254 mq.

Costruita nel 1985, questa residenza si sviluppa su più livelli, offrendo ampi spazi e una disposizione funzionale.

La villa comprende sei locali, ideali per accogliere una famiglia numerosa o per chi desidera ampi spazi abitativi.

La struttura, di categoria civile, è immersa in un contesto tranquillo, garantendo privacy e comfort.

Gli interni sono ben distribuiti, con ambienti luminosi e accoglienti.

Il piano terra è composto da ampio salone con camino, sala da pranzo con angolo cottura, camera matrimoniale, cameretta e due bagni.

Il piano primo, che disponde di un eventuale accesso indipendente, è composto da soggiorno, cucina, due camere da letto (una terza eventuale da poter predisporre) bagno e ampia terrazza vista lago, da cui si accede tramite veranda.

Questa proprietà rappresenta un'opportunità per chi cerca una soluzione abitativa spaziosa e ben collegata, senza rinunciare alla tranquillità di una villa indipendente. La villa è eventualmente divisibile, qualora fosse necessario, si trova a pochissimi minuti dalla centralità del paese.

Mostra tutto

Nelle vicinanze

Trasporto pubblico Trasporto pubblico
Trevignano Romano
780 m
Ricariche auto elettriche Ricariche auto elettriche
Trevignano Via Roma | EnelX
700 m
Trevignano al Molo | EnelX
710 m
Trevignano Platani | EnelX
920 m
Scuole Scuole
Istituto Comprensivo Statale “Tommaso Silvestri”
640 m
Farmacia Farmacia
Farmacia Amirkhanian
590 m
Farmapoint
700 m
Supermercati Supermercati
Carrefour Express
650 m
Carrefour
700 m
Tuodì
730 m
Negozi Negozi
Stefanelli
640 m
Alimentari
810 m
Bar Bar
Bar
1,1 Km
Ristoranti Ristoranti
MiGfood
660 m
Ristoranti
690 m
Il caratello
700 m
Di Fronte
710 m
Con Spirito Di...Vino
800 m
Mostra tutto

Caratteristiche

Rif.:
61119469
Piano:
2 di 2 (Piano su più livelli)
Posti auto:
2
Terrazzi:
1
Camere da letto:
5
Arredamento:
Assente
Mostra tutto
Prezzo Prezzo
€ 480.000
Rata mutuo Rata mutuo
€ 2.263 / mese
Spese annue Spese annue
€ 1
Proponi il tuo prezzoProponi il tuo prezzo

Classe Energetica

G
G
G
G
G
G
G
G
G
EP invernale del fabbricato:
EP estiva del fabbricato:
Anno di costruzione:
1985
Riscaldamento:
Autonomo
Tipo impianto:
A radiatori
Tipo alimentazione:
Metano

Ti interessa visionare l'immobile?

Fissa un appuntamento  Fissa un appuntamento

Richiedi informazioni

Clicca su Leggi per aprire l'informativa
* Questi campi sono obbligatori

Calcola il tuo mutuo

Semplice e senza impegno
Anticipo

( % )
Mutuo

( % )

pochi semplici passi

inserisci i tuoi dati
Questionario completato
Grazie per aver richiesto un appuntamento senza impegno con un nostro Consulente del Credito e Assicurativo.

Hai inserito correttamente tutti i dati necessari e a breve riceverai una e-mail con un link da convalidare per inviare i tuoi dati.
Affiliato
Trevignano Srl
Via Della Rena, 16 00069 Trevignano Romano (RM)

Il nostro staff


  • Alessio Bosi
    Collaboratore

  • Claudia Castellani
    Collaboratrice

  • Veronica Gentile
    Coordinatrice

  • Daniele Labbate
    Collaboratore

  • Alessandro Perri
    Affiliato
Via Della Rena, 16 00069 Trevignano Romano (RM)
Zona: Trevignano Romano
Mostra su mappa
Affiliato
Trevignano Srl
Via Della Rena, 16 00069 Trevignano Romano (RM)

2026 Tecnocasa Franchising S.p.A. - P. IVA 08365160152 - Via Monte Bianco 60/A 20089 Rozzano (MI). Ogni agenzia ha un proprio titolare ed è autonoma. Privacy policy | Policy utilizzo | Cookie policy