Villa singola in vendita

Trevignano Romano, Via SP4/a
€ 309.000
3 locali 3 locali
100 Mq 100 Mq
1 bagno 1 bagno

Villa singola in vendita

Trevignano Romano, Via SP4/a

Descrizione annuncio

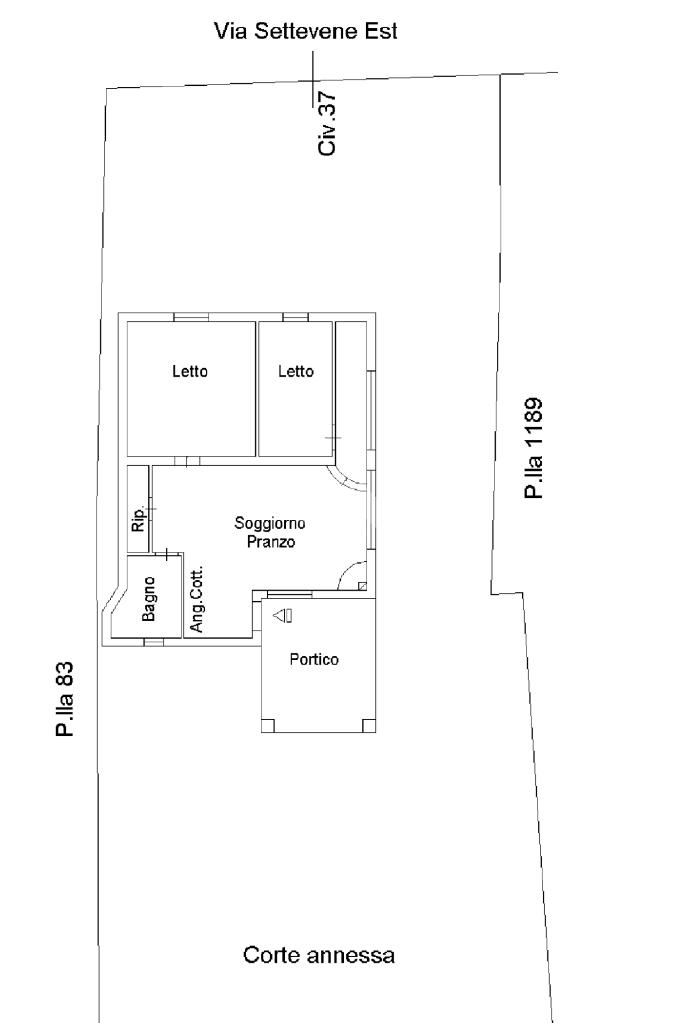
In una delle zone più tranquille e suggestive di Trevignano Romano, su Via di Settevene Est, proponiamo in vendita una graziosa villa singola sviluppata su un unico livello al piano terra, ideale per chi cerca comfort, privacy.

L’immobile, di circa 90 mq è composto da uno spazioso soggiorno con camino e angolo cottura, due camere da letto e un bagno. Gli ambienti sono ben distribuiti e godono di una piacevole luminosità durante tutta la giornata.

A completare la proprietà troviamo un ampio giardino privato, perfetto per momenti di relax all’aperto, cene estive o per chi desidera uno spazio verde da vivere in totale tranquillità.

La posizione è a pochi chilometri dal centro del paese di Trevignano Romano e dalla cassia bis, la zona riservata ma non isolata rende questa soluzione ideale sia come abitazione principale che come casa vacanze.

Un’opportunità unica per chi desidera vivere immerso nel verde senza rinunciare alla comodità dei servizi.

Mostra tutto

Nelle vicinanze

Trasporto pubblico Trasporto pubblico
Trevignano Romano
2,8 Km
Ricariche auto elettriche Ricariche auto elettriche
Trevignano al Molo | EnelX
2,8 Km
Scuole Scuole
Istituto Comprensivo Statale “Tommaso Silvestri”
2,7 Km
Farmacia Farmacia
Farmacia Amirkhanian
2,9 Km
Supermercati Supermercati
Carrefour Express
2,8 Km
Negozi Negozi
Alimentari
2,6 Km
Stefanelli
2,8 Km
Bar Bar
Palladium
1,0 Km
Ristoranti Ristoranti
Il Capannone
2,4 Km
Osteria Fuori Porta
2,5 Km
La Locanda
2,5 Km
La Tavernetta
2,5 Km
Le Ballon
2,5 Km
Mostra tutto

Caratteristiche

Rif.:
61195294
Piano:
Terra con giardino
Posti auto:
2
Terrazzi:
1
Camere da letto:
2
Arredamento:
Assente
Mostra tutto
Prezzo Prezzo
€ 309.000
Rata mutuo Rata mutuo
€ 1.457 / mese
Proponi il tuo prezzoProponi il tuo prezzo
Immobile valutato con T·Valuta

Altre caratteristiche

Classe Energetica

G
G
G
G
G
G
G
G
G
Anno di costruzione:
1960
Riscaldamento:
Autonomo
Tipo impianto:
A radiatori
Tipo alimentazione:
GPL

Ti interessa visionare l'immobile?

Fissa un appuntamento  Fissa un appuntamento

Richiedi informazioni

Clicca su Leggi per aprire l'informativa
* Questi campi sono obbligatori

Calcola il tuo mutuo

Semplice e senza impegno
Anticipo

( % )
Mutuo

( % )

pochi semplici passi

inserisci i tuoi dati
Questionario completato
Grazie per aver richiesto un appuntamento senza impegno con un nostro Consulente del Credito e Assicurativo.

Hai inserito correttamente tutti i dati necessari e a breve riceverai una e-mail con un link da convalidare per inviare i tuoi dati.
Affiliato
Trevignano Srl
Via Della Rena, 16 00069 Trevignano Romano (RM)

Il nostro staff


  • Alessio Bosi
    Collaboratore

  • Claudia Castellani
    Collaboratrice

  • Veronica Gentile
    Coordinatrice

  • Daniele Labbate
    Collaboratore

  • Alessandro Perri
    Affiliato
Via Della Rena, 16 00069 Trevignano Romano (RM)
Zona: Trevignano Romano
Mostra su mappa
Affiliato
Trevignano Srl
Via Della Rena, 16 00069 Trevignano Romano (RM)

2026 Tecnocasa Franchising S.p.A. - P. IVA 08365160152 - Via Monte Bianco 60/A 20089 Rozzano (MI). Ogni agenzia ha un proprio titolare ed è autonoma. Privacy policy | Policy utilizzo | Cookie policy